Tunnel-Kamineinsatz Kratki Lucy 12 mit 12 kW
Mit dieser Feuerstelle vom europäischen Markenhersteller Kratki bringen Sie gemütliche Strahlungswärme direkt in Ihr Wohnzimmer und heizen auch noch umweltfreundlich und kostensparend.
Dieser Designhit unter den Kamineinsätzen wird Sie durch einen überragenden Auftritt begeistern: Das ausdrucksstarke, wunderschöne Feuerpanorama (große Sichtscheibe) fängt den Augenblick auf verführerische Weise ein, da die hochmoderne und sichere Brennraumtechnik sowie die vorhandene Scheibenspülung eine langanhaltende freie Sicht auf das Spiel der Flammen gewährleisten. Durch eine getrennte Primär- und Sekundärluftzufuhr wird eine optimale Energieausbeute erzielt. Mit einem Wirkungsgrad von 80% gehört dieser zeitlose Kamin somit zu einem der Effizientesten seiner Klasse! Das spart Holz, schont die Umwelt und vermindert die Verbrennungsrückstände.
Dieser robuste Kamineinsatz erfüllt auf Grund seiner zukunftsweisenden Konstruktion die erforderlichen BIMSCHV-Emissionswerte für Deutschland (Stufe II) und wurde für Deutschland geprüft und zertifiziert.
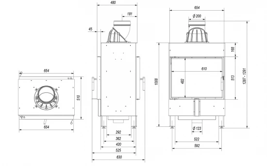
Im großen Brennraum finden Holzscheite bis zu einer Länge von 50 cm Platz (Optimal 33cm Holzscheite). Rost und Aschekasten sind herausnehmbar, was die Reinigung erleichtert.
Die beiden großen Sichtscheiben sind nicht mit einem dicken Metallrahmen eingefasst, sondern es handelt sich um eine sog. „rahmenlose Sichtscheibe“. Um die Scheibe ist ein glänzender, bedruckter Glaskeramikstreifen (ähnlich wie bei einer Mikrowelle). Dies wirkt sehr hochwertig und modern.
Der Brennraum ist mit Acumotte ausgekleidet. Diese massive, aber immer aktuelle Bauweise sorgt für Langlebigkeit und damit ungetrübter Freude am Flammenspiel.
Der Kamin besitzt keine selbstschließende Tür (Bauart 2), sodass es den deutschen Bestimmungen nach nötig ist, einen eigenen Schornsteinzug zur Verfügung zu stellen oder eine Schornsteinberechnung durchzuführen. Der Vorteil ohne einer selbstschließenden Tür ist, dass man beim Nachlegen von Holz oder beim Reinigen der Scheibe nicht immer mit einer Hand die Tür festhalten muss. Gegen einen Aufpreis von 40,- EUR inkl. MwSt. können wir Ihnen auch die Bauart 1 (mit selbstschließender Tür) liefern.
Damit erfüllt die Feuerstelle die höchsten Ansprüche an Aufbau, Ästhetik und Design.
Tunnel-Kamineinsatz Kratki Lucy 12 mit 12 kW
Die Highlights auf einen Blick:
– Zwei Türen mit großen Sichtscheiben
– Korpus schwarz lackiert
– Brennraum mit Acumotte
– Scheibenspülung (Sauberkeit der Sichtscheibe über lange Zeit)
– Hohe Leistung
– Große Holzscheite möglich (bis 50 cm)
– Sehr hoher Wirkungsgrad
– Ideal als Raumteiler nutzbar
– Kein zusätzlicher Feinstaubfilter notwendig
– Hervorragende Verarbeitung
– Beweglicher Rauchrohrstutzen 360°
– Kaminkörper und Kaminfront aus massivem Stahl
– Deflektor aus Acumotte (verlängert den Rauchgasweg)
– Kamintür mit modernem Türgriff
– Doppeltes Luftanleitungs-System der Brennkammer
– Regulierbare Füße
– Externer Verbrennungsluftanschluss 125 mm (hinten oder unten)
Technische Daten:
– BAUART 2 (keine selbstschließende Tür)
Gegen einen Aufpreis von 40,- EUR inkl.MwSt. können wir Ihnen auch die Bauart 1 (mit selbstschließender Tür) liefern.
– Nennleistung: 12 kW
– Leistungsbereich: 5,0-15,0 kW
– Wirkungsgrad: 80 %
– Rauchrohranschluss: Ø 200 mm (Gusskuppel um 360° drehbar)
– Zugelassene Brennstoffe: Holz und Holzbriketts
– Abgastemperatur: 270 °C
– Erf. Förderdruck bei Nennwärmeleistung: 12 Pa
– Mittl. CO-Gehalt der Abgase bezogen auf 13% O2: 0,1% (<1250 mg/m³)
– Feinstaub: 15 mg/m³
– Gewicht:
– Erfüllt die aktuellen BIMSCHV-Emissionswerte für Deutschland (Stufe II)
Der Einsatz erfüllt selbstverständlich die für einen Anschluss in Deutschland erforderlichen Bedingungen. Ein Filter oder andere Umrüstungen sind daher nicht nötig.
Bitte sprechen Sie vor dem Kauf einer Feuerstelle grundsätzlich mit Ihrem zuständigen Schornsteinfegermeister. Lassen Sie Ihren Schornstein vor dem Einbau der Feuerstelle auf Verwendbarkeit prüfen. Beachten Sie grundsätzlich die Bedienungs- und Aufstellanleitungen und wahren Sie die erforderlichen Sicherheitsabstände. Lassen Sie die Feuerstelle vor der ersten Befeuerung durch den Bezirksschornsteinfegermeister abnehmen.















Rezensionen
Es gibt noch keine Rezensionen.